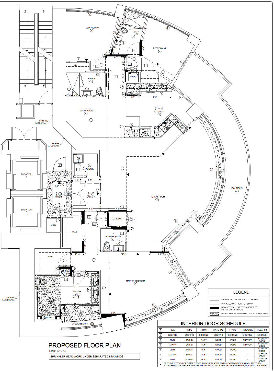
TR4709

Project Type: Full Apartment Renovation

Service Provided: Architectural Design, Interior Design, Styling, Construction Administration and Owner Representation

Total sq. ft: 2,800

Location: Sunny Isles Beach, FL


Drawings

Before